-
--热烈祝贺我会联办的科普活动被中国科协评为--优秀科普活动
12月21日,中国科学技术协会办公厅印发《关于对2020年全国科普日有关组织单位和活动予以表扬的通知》(科协办函普字【2020】158号), 、南京工程学会和江苏省学会服务中心联办的“2020年全国科普日暨第一届‘天印筑梦·科普智行’”活动,被评为优秀科普活动。
加工中心用的镗刀,就其切削部分而言,与外圆车刀没有本质的区别,但在加工中心上进行镗孔通常是采用悬臂式的加工,因此要求镗刀有足够的刚性和较好的精度。为适应不同的切削条件,镗刀有多种类型。按镗刀的切削刃数量可分为单刃镗刀和双刃镗刀。
01单刃镗刀
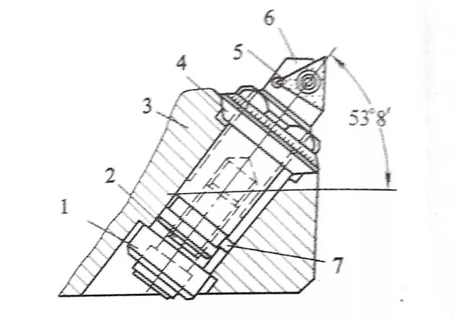
这类镗刀的刀柄和切削部分做成一体,切削部分以采用硬质合金为主。其结构如图,它只有一个切削刃,结构紧凑简单,体积小,制造容易,应用较广,可以镗削各类小孔、不通孔和台阶孔。若装在万能刀架或平旋盘滑座上,可以镗削直径较大的孔、端面等。但单刃镗刀刚性差,切削时易引起振动,所以镗刀的主偏角选得较大,以减小径向力。镗孔径的大小要靠调整刀具的悬伸长度来保证,调整麻烦,效率低,只能用于单件小批生产。
02微调镗刀
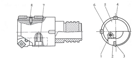
1 垫圈 2 拉紧螺钉 3 镗刀杆 4 调整螺帽 5 刀片 6 镗刀头 7 导向链
如图所示,该款镗刀适用于自动线,坐标镗床和数控机床上的微调镗刀,具有结构简单,制造容易,调节方便和精度高等特点。由拉紧螺钉和垫圈将调整螺母和镗刀头压紧在镗杆上,调节时,稍微松开拉紧螺钉,转动带刻度的调整螺母,就能使镗刀进行微调,然后旋紧拉紧螺钉。
03浮动镗刀
② 加工精度可以达到IT7-IT6。加工铸铁孔Ra可达0.8-0.2μm,加工钢料孔可达1.6-0.4μm。
③ 由于无法纠正孔的直线误差和位置误差,因而要求预制孔的直线性好,表面粗糙度值Ra≤0.4μm。
④ 结构简单,刃磨方便,但操作不便,不能加工孔径太小的孔,而且对镗刀及镗杆的制造要求高,特别是加工镗杆上的方孔,其切削效率低于铰削。
04机夹式深孔镗刀
机夹可转位硬质合金深孔镗刀
1 调整斜铁
2 刀垫 3 可转位刀片 4 导向块 5 刀体
6 调整螺钉 7 刀垫压紧螺钉 8 导向块压紧螺钉
05模块式镗刀
为了适应各种孔径和孔深的需要并减少镗刀的品种规格,设计了模块式镗刀。模块式镗刀是将镗刀分为:基础柄,延长器,减径器,镗杆,镗头,刀片座,刀片等多个部分,然后根据具体的加工内容进行自由组合。这样不但大大地减少了刀柄的数量,降低了成本,也可以迅速对应各种加工要求,并延长刀具整体的寿命。显而易见,模块式镗刀具有一体式镗刀无法比拟的优势。当然,这也需要模块镗刀具有高的连续精度和高的连续刚性,以及高的重复精度和高度的信赖性。总之,模块镗刀系统具有很大的优势,但并不是说只要是模块式就好。必须从连接刚性,精度,操作性,价格等多方面来衡量。